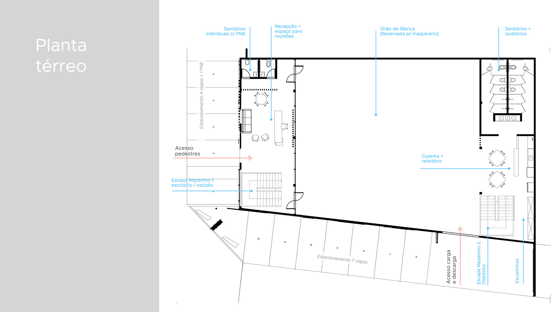
Projeto de arquitetura (reforma), sinalização e comunicação visual para indústria de produtos para treinos e esportes de alto impacto. Projeto + Render 3D + Maquete eletrônica navegável